REQUEST A TOUR If you would like to see this home without being there in person, select the "Virtual Tour" option and your agent will contact you to discuss available opportunities.
In-PersonVirtual Tour

Listed by AgentOwned Realty
$ 108,000
Est. payment /mo
Active
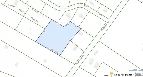
1381 Gausetown Rd Kingstree, SC 29556
4.2 Acres Lot
UPDATED:
Key Details
Property Type Vacant Land
Listing Status Active
Purchase Type For Sale
MLS Listing ID 25019466
HOA Y/N No
Lot Size 4.200 Acres
Acres 4.2
Property Description
Great Opportunity, Amazing Price! this is a combine 2 lots making 5 acres in the beautiful Kingstree town. You can build or seat 2 mobiles in these property.
Location
State SC
County Williamsburg
Area 81 - Out Of Area
Exterior
Utilities Available Electricity Connected
Building
Lot Description 2 - 5 Acres
Schools
Elementary Schools W.M. Anderson Primary
Middle Schools Hemingway M.B. Lee Middle
High Schools Hemingway High
Others
Acceptable Financing Cash, Conventional, Federal Land Bank
Listing Terms Cash, Conventional, Federal Land Bank
Financing Cash,Conventional,Federal Land Bank






